Verkocht

Aldegonde (Veerhaven) - Parkkavel 2 0 ong

Aldegonde (Veerhaven) - Parkkavel 2 0 ong

Aldegonde (Veerhaven) - Parkkavel 2 0 ong, Kruiningen foto-
Aldegonde (Veerhaven) - Parkkavel 2 0 ong, Kruiningen
Aldegonde (Veerhaven) - Parkkavel 2 0 ong, Kruiningen

Kruiningen

Aldegonde (Veerhaven) - Parkkavel 2 0 ong

Wonen in Veerhaven

Op slechts 10 minuten van de winkelstad Goes, midden tussen de grote steden Antwerpen en Rotterdam verrijst een nieuwe woonwijk. Circa 270 woningen en appartementen aan de rand van de Westerschelde en de dorpskern Kruiningen. Naast de vele plaatselijke voorzieningen kunt u van hieruit shoppen in Breda: 40 minuten autominuten, feesten in Antwerpen: 30 autominuten, werken in Europoort of een concertje meepikken in Rotterdam: 50 autominuten.

Werk en een leuke invulling van vrije tijd liggen daarmee altijd dichtbij. En dat vanuit een woonwijk met weidse uitzichten, een eigen stek en tijd voor jezelf. Alle voordelen van een karakteristiek dorp in Zeeland met grootstedelijke voorzieningen binnen handbereik.

Dat is Veerhaven, de nieuwe wijk van Kruiningen. Veerhaven ligt direct achter de zeedijk. Schepen varen vlak onder de kust voorbij op weg naar Antwerpen of het Kanaal door Zuid-Beveland. Altijd een ander uitzicht en altijd veranderende luchten boven de polders en akkers waar de wijk aan grenst. Volop ruimte voor kinderen om te spelen en te stampen in regenplassen, alle tijd om te wandelen over de boulevard met de wind in je haren. Een heerlijke plek om thuis te komen.

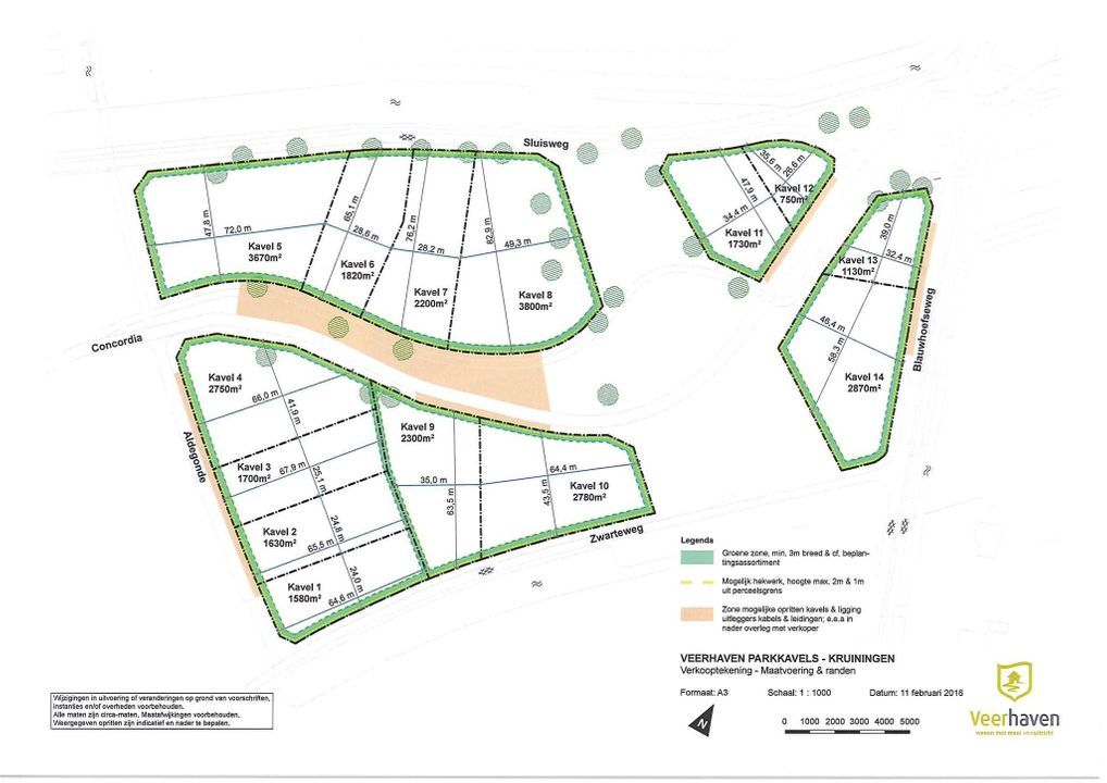
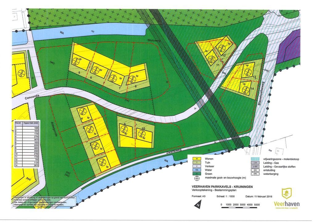
Kroon op deze prachtige wijk vormt het kloppende hart van Veerhaven, 14 royale Parkkavels voor een vrijstaande woning in een parkachtige omgeving. Deze bouwkavels bieden u de gelegenheid om het huis van uw dromen welstandsvrij te realiseren op een meer dan riante kavel, met een grote mate van vrijheid qua bouwstijl en materiaalkeuze. Met dien verstande dat de maximale goothoogte 6,00 meter bedraagt en de maximale nokhoogte 10,00 meter. De oppervlakten variëren van circa 750 tot circa 3.800 m2. De gepresenteerde afbeeldingen dienen slechts als sfeerbeeld, hieraan kunnen geen rechten worden ontleend.

Om de kavel van uw wens te reserveren klikt u op de onderstaande link. Mocht deze niet werken dan kunt u deze ook kopiëren en plakken in uw webbrowser:

http://reserveren.aleisure.nl/home2.php?projectid=105&intro=1

Kenmerken

Aanvaarding

Status
Verkocht
Oplevering
In overleg
Adres
Aldegonde (Veerhaven) - Parkkavel 2 0 ong
Postcode
4416
Plaats
Kruiningen

Bouw

Onderhoud binnen
Uitstekend
Onderhoud buiten
Uitstekend

Buitenruimte

Ligging
Aan rustige weg, In woonwijk

Contactgegevens

0113 - 21 11 47 0113 - 21 11 47 info@stadenzeeland.nl

Openingstijden

Maandag 09:00 - 17:30
Dinsdag 09:00 - 17:30
Woensdag 09:00 - 17:30
Donderdag 09:00 - 17:30
Vrijdag 09:00 - 17:30
Zaterdag Op afspraak
Zondag Op afspraak

Volg ons

Facebook Instagram LinkedIn